Investimento complessivo
Non sono compresi i costi di transazione
Redditività
I Plus dell'immobile




Vita del quartiere
Arcella
Interessante opportunità d’investimento in Via Schumann 14, situata nel quartiere Arcella di Padova, una zona dinamica e in continua evoluzione che unisce residenzialità, servizi e ottimi collegamenti con il centro città. L’immobile rappresenta un’ottima soluzione d’investimento anche grazie alla vicinanza e al facile accesso alle principali sedi dell’Università di Padova.

Dettagli appartamento
Situato in Via Schumann 14, questo appartamento a Padova offre un affitto garantito e un basso rischio.
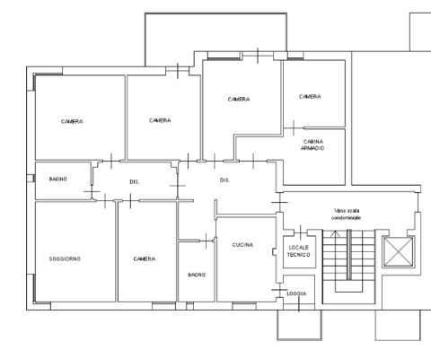
Con sei camere e due bagni, questa proprietà di 168 mq è ideale per investimenti nel co-living grazie alla sua flessibilità e layout.
La posizione strategica vicino al centro e alle università rende l'unità perfetta per una domanda locativa sostenuta.
Investire nel quartiere Arcella di Padova significa puntare su una zona dinamica e ben collegata, capace di garantire rendimenti costanti e
buone prospettive di valorizzazione nel tempo.
Dettagli edificio
Efficienza energetica
Stato appartamento
Dettagli lavori
Modifiche Layout
Ristrutturazione volta a massimizzare gli spazi interni rendendo commercializzabile e usufruibile ogni angolo dell'appartamento, suddiviso in ambienti privati e comuni.
Impianti
L'impianto elettrico è realizzato a regola d'arte secondo le normative vigenti con relativa certificazione, garantendo qualità, sicurezza e durabilità nel tempo.
L'impianto idraulico viene realizzato a regola d'arte, secondo le normative vigenti, utilizzando materiali e metodi volti a ottimizzare i consumi idrici giornalieri.
L'impianto di riscaldamento è stato realizzato a pavimento, seguendo i trend innovativi del mercato e le ultime tecnologie per garantire un comfort termico elevato ,con un'attenzione particolare al risparmio energetico.
L'impianto di climatizzazione dell'appartamento è canalizzato, per garantire un comfort termico elevato, minimazzando l'impatto visivo, unendo quindi l'estetica alla funzionalità.
Isolamento termico
Le porte interne sono nuove, realizzate con colori neutri e in materiale adeguato per garantire un ottimo isolamento acustico, unendo funzionalità ad estetica.
La porta principale è del tipo blindata, per garantire la massima sicurezza.
Gli infissi esistenti hanno subito un'opera di rinnovamento, in linea con l'intero appartamento, per aumentare il comfort termico degli inquilini.
Le nuove murature in cartongesso interne presentano uno strato di lana di roccia per migliorare le prestazioni termiche e acustiche. I muri perimetrali sono stati isolati per efficientare termicamente le prestazioni dell'appartamento, abassando notevolmente i costi di consumo.
Rivestimenti
La pavimentazione esistente è stata preservata a seguito di una manutenzione, pulizia e/o adeguamento, ove necessario, a seconda del tipo di pavimentazione (se parquet, lamato, se in marmo, piombato e lucidato).
Le finiture sono state progettate ed eseguite per rendere l'appartamento omogeneo, uniforme e accogliente, scegliendo accuratamente i materiali in base alla qualità e alla durabilità.
Illuminazione
L'illuminazione è studiata ad hoc per rendere l'ambiente accogliente e rilassante, con giochi di luci calda e soffusa. Completa l'illuminazione l'inserimento di corpi illuminanti di design che contribuiscono alla valorizzazione dell'appartamento.
Dettagli arredi inseriti
Zona giorno
Linee pulite ed essenziali, caratterizzano la zona giorno, con colori neutri accostati a tocchi vivaci degli accessori che rendono l'ambiente fresco e moderno.
La zona giorno è composta da un angolo TV che comprende un divano/poltroncina e tavolino basso, e da una piccola zona dining.
Cucina
La zona cucina è composta da soluzioni semplici, pratiche ed eleganti. I materiali sono studiati per contrastare l'usura quotidiana. Si compone di tutti gli elettrodomestici necessari (forno a microonde, lavastoviglie) per rispondere a tutte le esigenze, coadiuvando funzionalità ed estetica.
Zona notte
Composizioni ordinate e pulite, caratterizzano la zona notte, dando vita ad un ambiente ideale per il relax.
La zona notte è composta da letto matrimoniale e armadio adatto ad accogliere tutti gli effetti personali dell'inquilino, la stanza è dotata inoltre di uno scrittoio e di una boiserie poggia valigia, oltre che di una televisione.
Bagno
Sanitari filomuro a terra per una maggiore pulizia e rubinetteria cromata, rendono il bagno un ambiente confortevole e funzionale. Completano l'ambiente i colori neutri delle piastrelle su pareti e pavimento.
Dettagli locazione
La presenza di Joivy quale conduttore o gestore professionale garantisce:
- un reddito certo e sicuro
- zero rischi di morosità o turnover
- un incremento del valore del tuo investimento negli anni.
Tipologia di contratto
di locazione
di management
contratto
Riepilogo economico
* Oltre oneri di legge, costi di transazione e di intermediazione























